
农村一层平房图片大全,10万左右造价盖房无压力

一层带阁楼农村房屋设计效果图

15万就能拿下的5套一层自建别墅,经济实用都能建得起

1013米带阁楼层,农村自建栋美式住宅挺不错

3款一层别墅设计效果图,外观清新简约图纸头条鲁班设计图纸官网

2021农村自建房一层设计图农村一层房子怎么盖才漂亮

4套乡村别墅,大露台挑空客厅还有堂屋3最好看却仅需35万

12x13带阁楼农村房屋砖混三层,含多个效果图

6套一层农村自建养老房,有阁楼带屋顶露台,主体15万左右,省钱

几套农村兄弟俩双拼楼房设计图,二层三层都有

回头率超高的3款农村一层别墅,带观景平台阁楼设计

农村自建房,是盖200平米一层好,还是110平一层半带阁楼好

农村简单四层房屋设计图,带效果图,占地88平方米

二层农村自建房实拍图,仔细对比效果图后,没想到是这样的

5款11x10米的二层别墅设计图,主体20万到25万就建好了

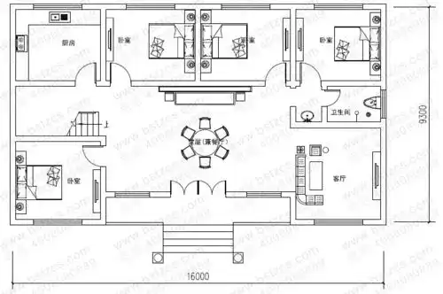
农村带阁楼一层房屋设计施工图,13x9米
丝路表情包大全












